Септик ГРИНЛОС Аква 3 низкий корпус
Цена: от 173 800 руб.
Технические характеристики
Тип сброса:
Самотечный
Энергопотребление:
1.8 кВт/сут
Кол-во пользователей:
3 человека
Объем переработки:
0.6 м3/сут
Размер Д*Ш*В:
2000*1200*1200 мм
Залповый сброс:
240 л
Объем:
1 м3
Вес:
107 кг
Глубина врезки:
60 см
краны х1
туалеты х1
стиральные машины х1
Преимущества над конкурентами
В отличие от конкурентов, в септиках ГРИНЛОС Аква короб с электрооборудованием установлен вне корпуса станции, поэтому гарантированно не подвержен затоплению.
В стандартную комплектацию септиков ГРИНЛОС уже входит биозагрузка, необходимая для тщательной переработки стоков.
Станции очистки ГРИНЛОС обладают надежными грунтозацепами, действительно предотвращающими всплытие оборудования на обводненных участках.
ГРИНЛОС Аква сразу укомплектован волосоуловителем, который эффективно задерживает волосы и прочие загрязнения, попавшие в канализацию вместе со стоками, не засоряется и легко чистится.
Особенности
ГРИНЛОС Аква 3 низкий корпус — это самотечная модель септика с уменьшенной высотой корпуса. Обладает объемом залпового сброса 240 л и производительностью 0.6 м3/сутки, что делает его подходящим для домов, в которых число жильцов не превышает 3 условных пользователей.
Отличительными особенностями септика ГРИНЛОС Аква 3 низкий корпус являются:
- Тип сброса — самотечный. Это значит, что очищенная вода сливается по трубе, которая идет под наклоном в сторону точки сброса. Применить это решение можно при наличии дренажного колодца, глубокого оврага, поля фильтрации, где вода уходит в грунт и не застаиваться.
- Высота корпуса — 1200 мм, что позволяет монтировать септик в сложных условиях грунта, высокий уровень грунтовых вод, плывуны, торфяной, скальный грунт и т. д
Модификации септика ГРИНЛОС Аква 3 низкий корпус
| Характеристики | ГРИНЛОС Аква 3 | ГРИНЛОС Аква 3 низкий корпус | ГРИНЛОС Аква 3 Пр | ГРИНЛОС Аква 3 низкий корпус Пр | ГРИНЛОС Аква 3 Миди | ГРИНЛОС Аква 3 Пр Миди |
|---|---|---|---|---|---|---|
| Тип сброса | Самотечный | Самотечный | Принудительный | Принудительный | Самотечный | Принудительный |
| Способ установки | стандартная | низкий корпус | с насосом | низкий корпус с насосом | удлиненная | удлиненная с насосом |
| Размер Д*Ш*В, мм | 1330*1330*1700 | 2000*1200*1200 | 1330*1330*1700 | 2000*1200*1200 | 1330*1330*2100 | 1330*1330*2100 |
| Вес, кг | 107 | 107 | 107 | 107 | 120 | 120 |
| Глубина залегания подводящей трубы, см |
60 | 60 | 60 | 60 | 100 | 100 |
| Цена | 165 000 руб. | 173 800 руб. | 176 000 руб. | 184 800 руб. | 179 200 руб. | 189 000 руб. |
Комплект поставки
- Корпус «Гринлос Аква» (1 шт.)
- Крышка (1 шт.)
- Съемный биофильтр (1 шт.)
- Рассекатель (1 шт.)
- Сотовая биозагрузка (1 шт.)
- Таймер (1 шт.)
- Рециркуляционный насос (1 шт.)
Эксплуатационная документация, в том числе:
- Технический паспорт «Гринлос Аква»
- Технический паспорт таймера
- Технический паспорт рециркуляционного насоса
- Сертификат соответствия ГОСТ Р ИСО 9001-2015 (ISO 9001:2005)
- Сертификат соответствия системе ГОСТ Р
- Декларация соответствия EAC
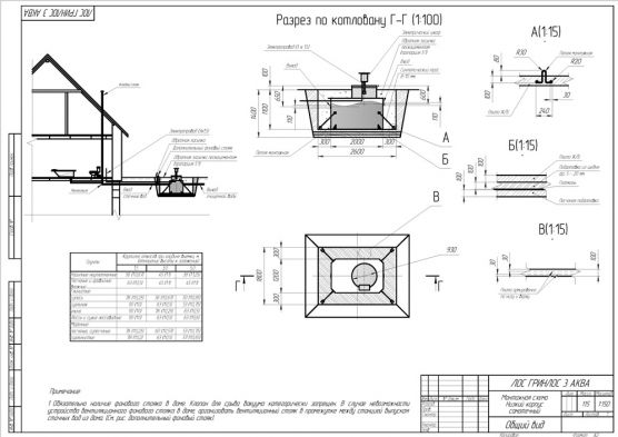
Размеры
Конструкция септика ГРИНЛОС Аква 3 низкий корпус представляет из себя цилиндр с горловиной, выполненный из монолитного полипропилена. Внутри цилиндра с помощью перегородок выделены четыре камеры, последовательно сообщающиеся между собой через отверстия и патрубки в перегородках, расположенные на определенной высоте.
Подробнее о размерах станции:
- H1 — Полная высота септика составляет 1.2 м.
- H2 — Высота от верха крышки до центра подводящей трубы – 600 мм.
- H3 — Высота без горловины – 700 мм.
- H4 — Высота крышки – 50 мм.
- L — Длина основания септика – 2000 мм.
- W — Ширина основания септика – 1200 мм.
- D2 — Диаметр крышки – 0.93 м.
- D3 вх/вых — Диаметры входящей и выходящей труб составляют 110/110 мм соответственно.
Возможно изготовление по индивидуальным размерам
Преимущества
Документация
Принцип работы
- Усреднение, разделение и отстаивание стоков, разделение на фракции. Начало взаимодействия стоков с активным илом, смытым с биозагрузки. Таким образом, в первой камере, помимо физических процессов, начинается биологическая переработка стоков.
- Продолжение процесса усреднения и отстаивания стоков, разделение на фракции. Продолжение взаимодействия стоков с активным илом, смытым с биозагрузки.
- Затем циркуляционный насос установленный в 3-й камере забирает отстоявшуюся воду и поднимает на верхний уровень, где через оросительный элемент разбрызгивает ее над биологическим фильтром. После этого стоки через биологический фильтр возвращаются в первую и вторую камеры, обогащенные кислородом и бактериями. Насос включается с периодичностью, заданной входящим в комплектацию таймером.
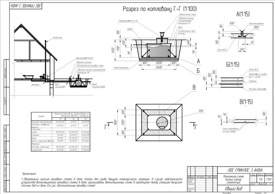
Монтаж септика ГРИНЛОС Аква 3 низкий корпус
- Выбор местоположения
Оборудование следует рассматривать в качестве составной части системы водоотведения. Оно может быть рассчитано на обслуживание одного или нескольких индивидуальных жилых домов. В ходе проектирования системы водоотведения следует принимать во внимание несколько ключевых особенностей территории, на которой запланирована установка оборудования.
К таковым относят:
- состав почвы;
- уровень прохождения грунтовых вод и его возможные колебания
- специфику рельефа местности;
- удаленность от различных водозаборных сооружений;
- погодно-климатические особенности данного региона.
- Монтаж и установка
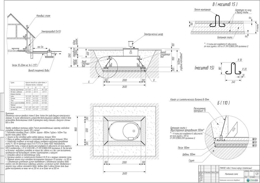
Целесообразно доверить выбор и монтаж оборудования специализированной компании. Перед непосредственным монтажом Оборудования специалисты осуществляют подготовку котлована. Его размеры определяются конструктивными особенностями выбранной модели оборудования. Ознакомиться с данными параметрами можно в приложении к ПС. По боковым стенкам корпуса должно быть сохранено свободное расстояние до грунта не менее 250 мм. Дно котлована нуждается в более тщательной подготовке. Его подвергают выравниванию с последующей засыпкой слоем песка, обладающим толщиной в пределах 10-15 см. Пазухи котлована подвергают обратной засыпке при помощи песка, который послойно поливают водой. Прежде чем приступить к аналогичным работам, емкость оборудования на четверть заполняют водой. Впоследствии количество воды внутри емкости увеличивают соразмерно уровню засыпки песком наружных стенок. Каждые 200 мм песка подвергаются ручному уплотнению.
Поверх корпуса оборудования выполняется песчаная обсыпка на высоту 150-300 мм. Для подсоединения оборудования к внутренней канализационной магистрали применяют канализационные трубы, предназначенные для эксплуатации.
Уклон труб при создании трубопроводной сети должен неизменно составлять 2,5-3 см на каждый метр расстояния.
Недопустимо:
- заглубление в грунт на глубину свыше одного метра от верхнего края корпуса оборудования, если отсчет осуществляется от нулевой отметки грунта;
- применение строительной техники в процессе обратной засыпки оборудования;
- использование строительной техники для организации уплотнения грунта;
- использование колющих предметов, которые могут спровоцировать механическое повреждение емкости;
- передвигаться на транспорте в непосредственной близости от места проведения работ по установке оборудования.
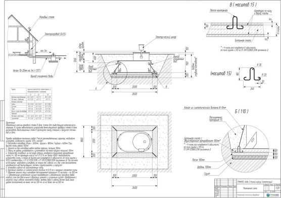
Схемы монтажа:
Способы отвода очищенной воды
Монтаж с отводом стоков в инфильтратор. Пластиковые инфильтраторы подземного типа для доочистки и поглощения грунтом хозяйственно-бытовых, дождевых и ливневых стоков широко пользуются спросом при строительстве и организации полей фильтрации (поглощения).
Большая вместимость инфильтратора и простота монтажа способствует быстрому возведению полей фильтрации в загородном и промышленном строительстве. Инфильтраторы идеально сочетаются с любыми видами септиков, замыкая предварительную очистку стоков на эффективное "дренажное поле".
Монтаж с самотечным отводом очищенных сточных вод в дренажную канаву. Подходит для хорошо впитывающих грунтов (песок, супесь) и низком уровне грунтовых вод. При выборе данного способа водоотведения необходимо обеспечить свободное отведение очищенной воды от выпуска трубопровода, необходимо полностью исключить под-топление выпуска. В противном случае, в летний период, трубопровод будет заиливаться и засоряться, а Станция будет подвержена обратному затоплению водами с точки сброса. В зимний период, трубопровод и точка сброса будут промерзать. Такие условия работы оборудования приведут к аварии.
Монтаж с отводом очищенных сточных вод в дренажный элемент. Этот вариант позволит в значительной степени сэкономить место на участке, однако дренажный элемент в большей степени подвержен затоплению в условиях подъема грунтовых вод.
Монтаж с отводом очищенных сточных вод в фильтрующий колодец. Подходит для хорошо поглощающих грунтов (песок, супесь) и низком уровне грунтовых вод. Колодец поглощения может быть выполнен из бетонных колец или при помощи пластикового колодца с перфорированным основанием и стенками. При монтаже колодца поглощения на выпуск трубы рекомендуется смонтировать обратный клапан для защиты Станции от обратного затопления в периоды активного снеготаяния или в дождливое межсезонье. Непосредственно под выпуском отводящей трубы от Станции, рекомендуется смонтировать аварийный насос, для дополнительной защиты Станции от обратного затопления из колодца поглощения.
Эксплуатация и обслуживание
Запрещается сброс в канализацию:
- строительного мусора, песка, цемента, извести, строительных смесей и прочих отходов строительства;
- нефтепродуктов, горюче-смазочных материалов, красок, растворителей, антифризов, кислот, щелочей, спирта и т. п.;
- промывных вод фильтров бассейна, содержащих дезинфицирующие компоненты (озон, активный хлор и им подобные);
- промывных (регенерационных) вод от установок подготовки и очистки воды с применением марганцево-кислого калия или других внешних окислителей;
- большого количества стоков после отбеливания белья хлорсодержащими препаратами («Персоль», «Белизна» и им подобные);
- лекарств и лекарственных препаратов;
- большого количества шерсти домашних животных;
- применение антисептических насадок с дозаторами на унитаз;
- применение биологических препаратов, предназначенных для очистки труб; применение биологических препаратов, предназначенных для интенсификации работы септиков и очистных сооружений.
Разрешается сброс в канализацию:
- мягкой, легко разлагающейся туалетной бумаги;
- стоков стиральных машин, при условии применения стиральных порошков без хлора;
- кухонных стоков с использованием моющих средств без хлора;
- душевых и банных стоков;
- небольшого количества средств для чистки унитазов, санфаянса и кухонного оборудования.
Консервация в случае сезонного использования
Если оборудование предназначено для сезонной эксплуатации и будет простаивать в течение длительного времени. Консервация необходима в том случае, если устройство будет простаивать не менее трех месяцев.
Процедура консервации включает в себя несколько базовых этапов:
- Отключение насосного оборудования от сети электроснабжения;
- Отсоединение патрубков и демонтаж насоса, обеспечивающего принудительный сброс нечистот из третьей камеры (для моделей Аква Пр);
- Откачка скопившейся в емкостях жидкости поочередно при помощи фекального насоса и ассенизаторской машины, с последующим заполнением емкости чистой водой;
- Заполнение всех камер оборудования чистой водой до места расположения лотка входной трубы.
Похожие товары
Фотогалерея выполненных монтажей
Остались вопросы? Свяжитесь с нами!
Мы всегда готовы бесплатно проконсультировать по вопросам, связанным с продукцией Гринлос, а также помочь с выбором оптимальной модели септика для решения ваших задач.



