Гринлос Аэро Лайт 7 Пр НК
Преимущества над конкурентами
Септик Гринлос Аэро Лайт ПР НК оснащен запатентованной инновационной горловиной: в случае затопления септика поднимающаяся вода отводится через специальный желоб наружу.
Высота станции 1 м, что позволяет устанавливать ее на участках с высоким УГВ. При этом сохраняется возможность наращивания горловины.
Cтанции очистки Гринлос Аэро Лайт Пр НК оснащены аэратором, который обеспечивает подачу воздуха для активного размножения аэробных бактерий.
Станции биологической очистки ГРИНЛОС Аэро Лайт Пр в низком корпусе отличаются низкой себестоимостью как в производстве, так и в процессеэксплуатации.
Особенности
Гринлос Аэро Лайт 7 Пр НК — это модель аэрационной установки биологической переработки с залповым сбросом 350 л и производительностью 1.5 м3/сутки, что делает его подходящим для домов, в которых число жильцов не превышает 7 условных пользователей.
Отличительными особенностями септика Гринлос Аэро Лайт 7 Пр НК являются:
Тип сброса – принудительный, на что указывает обозначение «Пр» в названии модели. В конструкции предусмотрена отдельная камера с насосом, который откачивает очищенную воду из септика. Процесс полностью автоматизирован и не требует вашего участия. Отведение стоков возможно в канаву или в дренажный колодец.
Высота корпуса Гринлос Аэро Лайт 7 Пр НК — 1.07 м, а врезка подводящей трубы осуществляется на глубине до 30 см. Станция подходит для монтажа во все виды почв: песок, глина, суглинок, грунты с высоким уровнем грунтовых вод.
Модификации септика Гринлос Аэро Лайт 7 Пр НК
| Характеристики | Гринлос Аэро Лайт 7 Миди | Гринлос Аэро Лайт 7 Пр Миди | Гринлос Аэро Лайт 7 Лонг | Гринлос Аэро Лайт 7 Пр Лонг | Гринлос Аэро Лайт 7 | Гринлос Аэро Лайт 7 Пр | Гринлос Аэро Лайт 7 Пр НК Лонг | Гринлос Аэро Лайт 7 НК | Гринлос Аэро Лайт 7 Пр НК | Гринлос Аэро Лайт 7 НК Миди | Гринлос Аэро Лайт 7 Пр НК Миди | Гринлос Аэро Лайт 7 НК Лонг |
|---|---|---|---|---|---|---|---|---|---|---|---|---|
| Тип сброса | Самотечный | Принудительный | Самотечный | Принудительный | Самотечный | Принудительный | Принудительный | Самотечный | Принудительный | Самотечный | Принудительный | Самотечный |
| Способ установки | удлиненная | удлиненная с насосом | удлиненная | удлиненная с насосом | стандартная | стандартная с насосом | низкий корпус с насосом, удлиненная горловина | низкий корпус | низкий корпус с насосом | низкий корпус, удлиненная горловина | низкий корпус с насосом, удлиненная горловина | низкий корпус, удлиненная горловина |
| Размер Д*Ш*В, мм | 930*930*2770 | 930*930*2770 | 930*930*2970 | 930*930*2970 | 930*930*2370 | 930*930*2370 | 1600*1200*1670 | 1600*1200*1070 | 1600*1200*1070 | 1600*1200*1470 | 1600*1200*1470 | 1600*1200*1670 |
| Вес, кг | 115 | 115 | 128 | 128 | 107 | 107 | 87 | 69 | 74 | 79 | 77 | 82 |
| Глубина залегания подводящей трубы, см |
100 | 100 | 120 | 120 | 60 | 60 | 90 | 30 | 30 | 70 | 70 | 90 |
| Цена | 198 000 руб. | 206 800 руб. | 218 900 руб. | 228 800 руб. | 192 500 руб. | 201 300 руб. | 238 000 руб. | 201 000 руб. | 213 000 руб. | 216 000 руб. | 222 000 руб. | 229 000 руб. |
Комплект поставки
- Корпус «Гринлос Аэро Лайт 7 Пр НК» (1 шт.)
- Крышка (1 шт.)
- Компрессор (1 шт.)
- Аэролифт (2 шт.)
- Устройство сбора жировых пленок (1 шт.)
- Дренажный насос (1 шт.)
Эксплуатационная документация, в том числе:
- Технический паспорт «Гринлос Аэро Лайт»
- Сертификат соответствия ГОСТ Р ИСО 9001-2015 (ISO 9001:2005)
- Сертификат соответствия системе ГОСТ Р
- Декларация соответствия EAC
Документация
Принцип работы
Корпус станции Аэро Лайт Пр НК разделен на 4 герметичных отсека.
В аэротенке, который является первой приемной камерой, осуществляется аэрация сточных вод с помощью мелкопузырчатого аэратора. Насыщение воды кислородом из воздуха представляет собой ключевой элемент для биологического процесса обработки хозяйственно-бытовых стоков.
После этого обогащенные кислородом стоки через технологическое отверстие, размещенное на определенной высоте, перетекают в камеру денитрификации, или анаэробную камеру. В этой камере установлено устройство для сбора жировых пленок, которое эффективно удаляет жиры с поверхности сточных вод. Это предотвращает образование зон застоя и возникновение поверхностных пленок из твердых жиров. Остатки неразложившегося активного ила, осевшие на дне, подаются в стабилизатор ила с помощью аэролифта.
Стабилизатор ила предназначен для сбора омертвевшего ила, который оседает на дно. При этом активный ил из верхнего слоя через специальный перелив возвращается в первую камеру септика Гринлос Аэро Лайт Пр НК, где он сразу начинается взаимодействовать со стоками, которые поступают в систему. Жировые пленки, собранные устройством для сбора жировых пленок, также поступают самотеком в первую камеру (аэротенк) для повторной переработки.
С течением времени, по мере накопления омертвевшего ила и минеральных осадков в отстойнике, возникает необходимость откачки содержимого с помощью дренажного насоса. Частота откачки отстойника определяется пользователем в процессе эксплуатации, однако она должна проводиться не реже одного раза в год.
Монтаж септика Гринлос Аэро Лайт 7 Пр НК
- Выбор местоположения
Септик Гринлос Аэро Лайт Пр НК представляет собой важный элемент системы водоотведения. Она может эффективно обслуживать как одно, так и несколько индивидуальных жилых домов. При проектировании системы водоотведения необходимо учитывать несколько ключевых факторов, связанных с территорией, на которой предполагается установка оборудования.
К таковым относят:
- состав почвы;
- уровень прохождения грунтовых вод и его возможные колебания
- специфику рельефа местности;
- удаленность от различных водозаборных сооружений;
- погодно-климатические особенности данного региона.
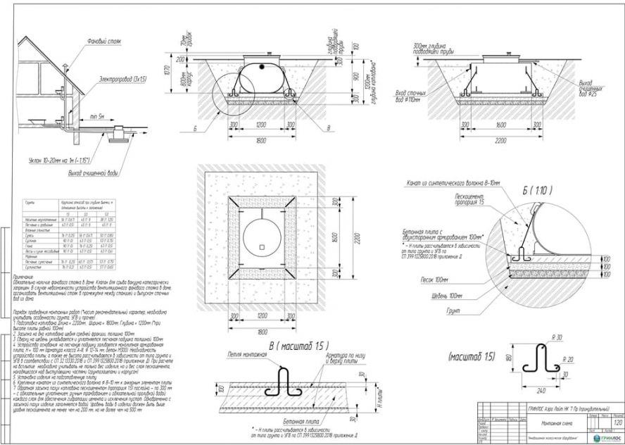
Перед непосредственным монтажом Гринлос Аэро Лайт Пр НК специалисты осуществляют подготовку котлована. Его размеры определяются конструктивными особенностями выбранной модели оборудования. Ознакомиться с данными параметрами можно в приложении к ПС.
- Монтаж и установка
Рекомендуется поручить выбор и установку септика Гринлос Аэро Лайт Пр НК специализированной компании. Перед началом монтажа специалисты должны подготовить котлован, размеры которого определяются конструктивными особенностями выбранной модели. Эти параметры можно найти в приложении к проектной документации. Важно оставить свободное пространство не менее 250 мм между боковыми стенками корпуса и грунтом.
Дно котлована требует более тщательной подготовки: его необходимо выровнять и засыпать слоем песка толщиной 30 см. Кроме того, углубления котлована необходимо засыпать песком, увлажнять послойно. Перед проведением этих работ станцию заполняют водой на одну четверть её объема, а затем уровень воды увеличивается пропорционально засыпке песком внешних стенок. Каждый слой песка толщиной в 200 мм должен дополнительно уплотняться вручную.
На верхнюю часть корпуса Гринлос Аэро Лайт Пр НК укладывается песчаная подушка высотой от 150 до 300 мм. Для подключения оборудования к внутренней канализационной системе используются специальные канализационные трубы, предназначенные для подобной эксплуатации.
При прокладке трубопроводной сети необходимо обеспечивать уклон труб в диапазоне 2,5-3 см на каждый метр длины.
Рекомендуется не заглублять септик более чем на один метр от верхнего края корпуса, если измерять от нулевой отметки грунта, а также не использовать строительную технику во время обратной засыпки оборудования, чтобы избежать повреждений.
Схемы монтажа:
Похожие товары
Кол-во человек: 7
Залповый сброс: 350 л
Объем переработки: 1.5 м3/сут
Фотогалерея выполненных монтажей
Остались вопросы? Свяжитесь с нами!
Мы всегда готовы бесплатно проконсультировать по вопросам, связанным с продукцией Гринлос, а также помочь с выбором оптимальной модели септика для решения ваших задач.


